約38坪 馬喰町【セットアップ】
物件ID: mu1-060
高級感あるオシャレデザインのセットアップオフィス!
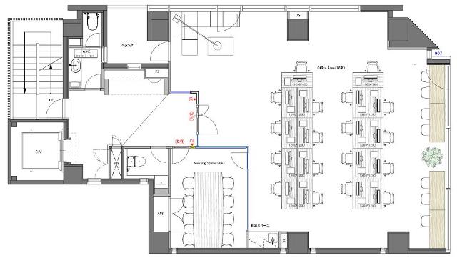
【おすすめポイント】 ①25人分の什器&会議室什器設置済み ②スケルトン天井仕様 ========================================================================== ⇓⇓ まずはご相談ください ⇓⇓ 『こんな物件をさがしている』 『現在のオフィスを居抜きで退去したい』 などのご相談も多く承っております。 お客様に合ったご提案が可能ですので、まずはお気軽にご相談ください。
| 物件名 | 非公開 |
|---|---|
| 現況 | 募集終了 |
| 賃料 | お問合せください |
| 管理費 | 相談 |
| 敷金・礼金 | 相談・相談 |
| 専有面積 | お問合せください |
| 所在地 | 東京都千代田区 |
| 最寄り駅 | 総武本線 馬喰町駅 |
| 構造/規模 | - |
| 竣工年 | - |
| 設備 | - |