【麹町駅至近 15坪~25坪】
物件ID: n019
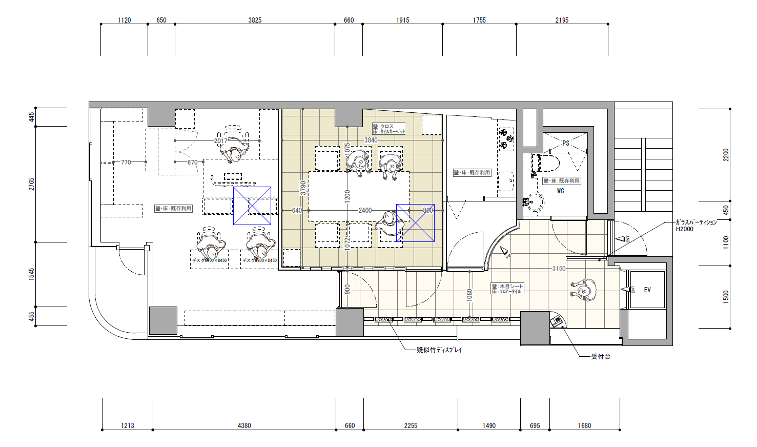
◆◆グレード感ある豪華エントランス◆◆ ◆◆使いやすい会議室造作◆◆
麹町駅近くに居抜き退去の希望のテナント様がいらっしゃいます!! 高級感あふれるエントランス、シックな会議室、全体的に洗練されたデザインは どんな業種にもマッチします!! レイアウトは会議室、執務スペースとシンプルで使いやすいレイアウトです。 4名から8名程度のベンチャー企業、士業の方などに見て頂きたい物件です!! 早い者勝ちです!!是非お問合せ下さい!!
| 物件名 | 非公開 |
|---|---|
| 現況 | 募集終了 |
| 賃料 | お問合せください |
| 管理費 | 相談 |
| 敷金・礼金 | 相談・相談 |
| 専有面積 | お問合せください |
| 所在地 | 東京都千代田区 |
| 最寄り駅 | 東京地下鉄有楽町線 麹町駅 |
| 構造/規模 | - |
| 竣工年 | - |
| 設備 | - |