★飯田橋駅30坪~40坪
物件ID: nt002
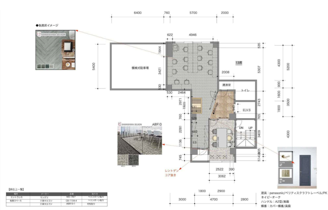
【飯田橋徒歩2分リノベーション内装付きオフィス】
今回は飯田橋駅内装付きセットアップオフィスのご案内です!! 飯田橋はかなり多くの路線が使える交通の便がよい駅です!! 貸室内はエントランス、執務スペース、会議室とシンプルかつ使いやすい造りです。 すっきりとお洒落な内装はオーナーの拘りを感じます。 皆様是非お問合せ下さい。
| 物件名 | 非公開 |
|---|---|
| 現況 | 募集終了 |
| 賃料 | お問合せください |
| 管理費 | 相談 |
| 敷金・礼金 | 相談・相談 |
| 専有面積 | お問合せください |
| 所在地 | 東京都千代田区 |
| 最寄り駅 | 東京地下鉄東西線 飯田橋駅 |
| 構造/規模 | - |
| 竣工年 | - |
| 設備 | - |