<有楽町 120~150坪>
物件ID: yt032
◆有楽町駅徒歩1分の好立地、希少な100坪強の居抜き物件◆
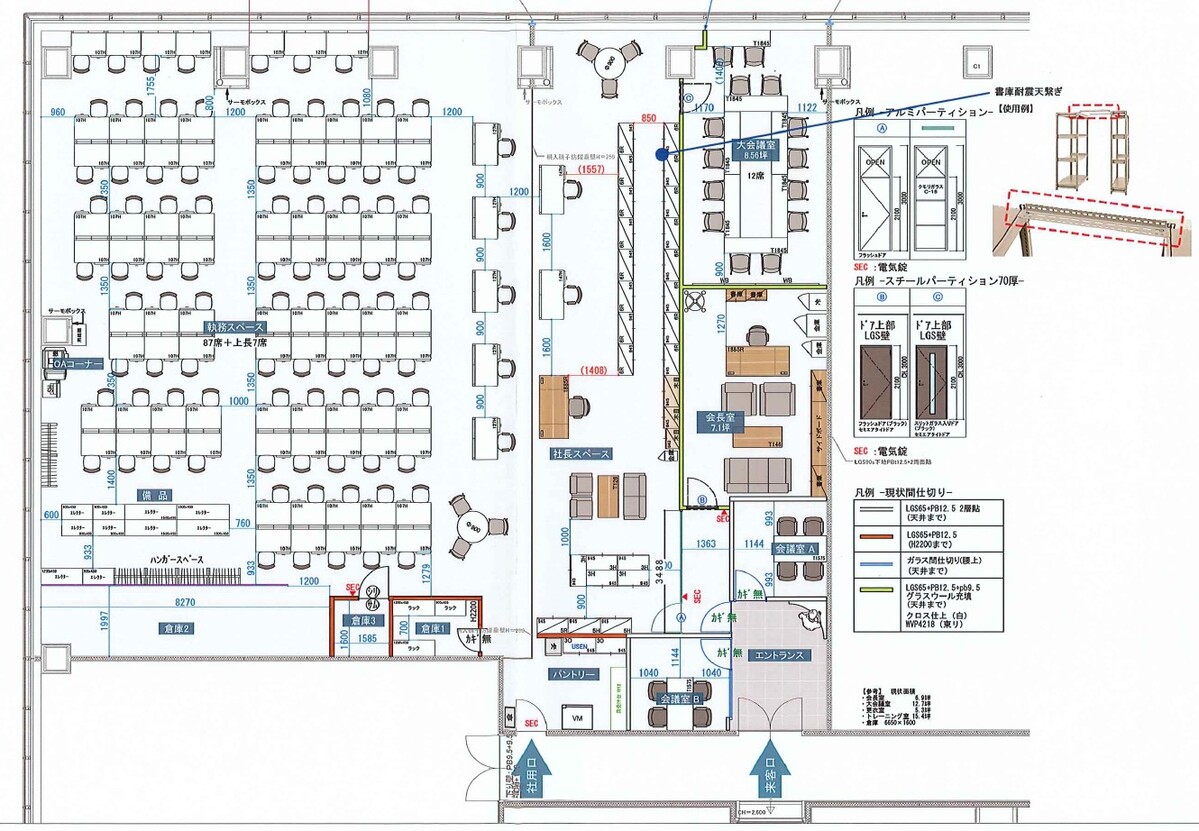
駅徒歩1分、高層ビルの分割区画にて使い勝手の良い居抜き募集でました! まだ3年弱しか使用していないため、とてもキレイです。 エントランス、小会議室が2つ、大会議室が1つ、現在役員室として使用している個室が1つのシンプルな間仕切りです。 執務エリアは、約90席で、備品倉庫用に目隠しがあり、すぐに業務も始められます。
| 物件名 | 非公開 |
|---|---|
| 現況 | 募集終了 |
| 賃料 | お問合せください |
| 管理費 | 相談 |
| 敷金・礼金 | 相談・相談 |
| 専有面積 | お問合せください |
| 所在地 | 東京都千代田区 |
| 最寄り駅 | 山手線 有楽町駅 |
| 構造/規模 | - |
| 竣工年 | - |
| 設備 | - |