イワハナビル2階の賃貸情報
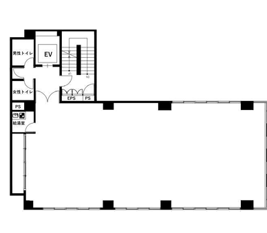
47.55 坪 (157.19m²)
※このサイトに記載がある賃貸条件は、敷金・保証金などの預かり金を除き、別途消費税がかかります。
イワハナビルの建物概要
設備詳細
| 空調 | 個別空調 |
|---|---|
| トイレ | 男女別トイレ室内 |
| 床仕様 | OA対応床(フリーアクセス) |
| エレベータ | 1 基 |
| 駐車場設備 | - |
| その他 | 新耐震基準 / クリニック / 店舗可(飲食不可) |
イワハナビル2階の賃貸オフィス・事務所に関するお問い合わせ
イワハナビルについて
イワハナビルは、江東区亀戸1丁目に位置する地上9階建ての事業用賃貸ビルです。総武線、総武・中央緩行線、亀戸線「亀戸駅」から徒歩4分と、複数路線が利用できるエリアに立地しています。駅からのアクセスが簡便なため、従業員や来客の移動手段として公共交通機関を利用される法人様にも適した環境です。 本ビルは、新耐震基準に適合しており、建物としての安全性にも配慮されています。周辺はオフィスや店舗が混在するエリアとなっており、さまざまな業種が集まる地域性を持っています。ビルのフロア構成は地上9階となっており、事務所用途をはじめとした法人利用に適した空間を確保できます。 江東区亀戸エリアの中心に構えることで、ビジネス拠点としての利便を備える立地となっています。亀戸駅からのアプローチもしやすく、近隣には生活利便施設や飲食店も多く点在していますので、社員の就業環境としてもご検討いただけます。 建物の具体的な設備や区画、空室状況等の詳細はお問い合わせください。
自分で探すより問い合わせる方が早いことがあります
WEB非公開物件があるから
オーナー様のご希望により「WEBでは非公開」にしている物件があります。 それらはWEBでいくら検索しても見つかりません。 先ずは条件などお知らせ頂けましたら非公開物件含め ピッタリのオフィスをご提案させて頂きます。 無理なお勧めはしておりませんので、お気軽にお問い合わせください。
対面でのご相談も受け付けております
ご来店も歓迎です
オフィス移転は社内・社外ともに非公開に行われることが殆どです。そのためアットオフィスでは、基本的に訪問によるコンサルティングを行っておりますが、ご来店の相談も歓迎です。お一人おひとりに親身にご対応させて頂きたい為、要予約とさせて頂いております。ご来店の際は先ずは下記よりご予約下さい。
江東区エリアでイワハナビルに似た条件の物件
読込中...
イワハナビルと同じ最寄駅の物件
読込中...
| 取扱様態 | 仲介 |
|---|---|
| 取扱会社 | 株式会社 アットオフィス |