※このサイトに記載がある賃貸条件は、敷金・保証金などの預かり金を除き、別途消費税がかかります。
物件情報
設備詳細
| 空調 | - |
|---|---|
| トイレ | - |
| 床仕様 | - |
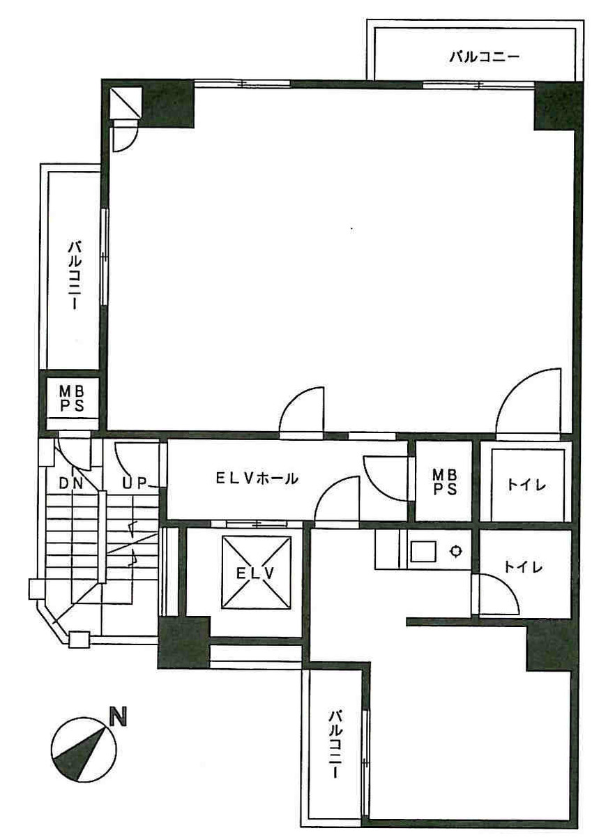
| エレベータ | 1 基 |
| 駐車場設備 | - |
| その他 | - |
ジュエル青山ビルの賃貸オフィス・事務所に関するお問い合わせ
ジュエル青山ビルについて
東京都港区南青山3-10-41に位置するジュエル青山ビルは、表参道駅から徒歩わずか2分という驚異的なアクセスの良さを誇るオフィスビルです。この地の重要性と、そこに立地するビルの価値を考える際、まず思い浮かべるのは、この地域の洗練された都市環境と、ビジネスの中心地としての活気です。ジュエル青山ビルはその両方を兼ね備え、企業にとって理想的なオフィス空間を提供しています。 このビルの最大の魅力は、その立地にあります。表参道は、高級ブランドショップ、トレンドを反映したカフェやレストランが立ち並び、国内外から多くの訪問者が集まるエリアです。そのため、ジュエル青山ビルは、企業のブランドイメージ向上に寄与するだけでなく、クライアントや従業員にとっても魅力的な環境を提供します。大通り沿いに面しており、視認性の高さも企業にとって大きなメリットです。この地にオフィスを構えることは、その企業が一定のステータスを有することを象徴し、ビジネスの成功に不可欠な信頼と品格を提供します。 ビル内部の設備も充実しています。エレベーターは1機設置されており、入居者の快適な移動をサポートします。また、オフィス空間は機能的でありながらも、南青山の洗練されたエリアにふさわしいデザインが施されています。これにより、クリエイティブな仕事環境を求める企業にとっても魅力的な選択となります。 ジュエル青山ビルは、その立地、設備、デザインのすべてにおいて、企業が成長し続けるための基盤を提供します。ここにオフィスを構えることで、企業はビジネスの可能性をさらに広げ、従業員の満足度を高めることができるでしょう。このビルは、ただのオフィススペースを超え、企業が社会に対して発信できる強力なメッセージとなり得ます。ジュエル青山ビルは、ビジネスの新たな章を始めるための理想的な場所です。
ジュエル青山ビルのこだわり
自分で探すより問い合わせる方が早いことがあります
WEB非公開物件があるから
オーナー様のご希望により「WEBでは非公開」にしている物件があります。 それらはWEBでいくら検索しても見つかりません。 先ずは条件などお知らせ頂けましたら非公開物件含め ピッタリのオフィスをご提案させて頂きます。 無理なお勧めはしておりませんので、お気軽にお問い合わせください。
対面でのご相談も受け付けております
ご来店も歓迎です
オフィス移転は社内・社外ともに非公開に行われることが殆どです。そのためアットオフィスでは、基本的に訪問によるコンサルティングを行っておりますが、ご来店の相談も歓迎です。お一人おひとりに親身にご対応させて頂きたい為、要予約とさせて頂いております。ご来店の際は先ずは下記よりご予約下さい。
募集終了のテナント区画
| 階数 | 坪数 | 賃料 + 共益費 | 敷金/礼金敷金 礼金 | 検討 |
|---|---|---|---|---|
| 2階 | 22.6坪 (74.71m²) | 募集終了 | - | - |
| 3階 | 6.72坪 (22.22m²) | 募集終了 | - | - |
| 4階 | 7.74坪 (25.59m²) | 募集終了 | - | - |
| 5階 | 22.6坪 (74.71m²) | 募集終了 | - | - |
| 6階 | 6.73坪 (22.24m²) | 募集終了 | - | - |
| 7階 | 13.51坪 (44.66m²) | 募集終了 | - | - |
| 8階 | 6.73坪 (22.24m²) | 募集終了 | - | - |
| 10階 | 20.11坪 (66.5m²) | 募集終了 | - | - |
読込中...
青山エリアでジュエル青山ビルに似た条件の物件
読込中...
| 取扱様態 | 仲介 |
|---|---|
| 取扱会社 | 株式会社 アットオフィス |