※このサイトに記載がある賃貸条件は、敷金・保証金などの預かり金を除き、別途消費税がかかります。
物件情報
設備詳細
| 空調 | 個別空調 |
|---|---|
| トイレ | 男女別トイレ |
| 床仕様 | - |
| エレベータ | 1 基 / エレベーター有 |
| 駐車場設備 | - |
| その他 | 光ファイバー / 24時間利用可 / 機械警備 |
アドバンテック南青山ビルの賃貸オフィス・事務所に関するお問い合わせ
アドバンテック南青山ビルについて
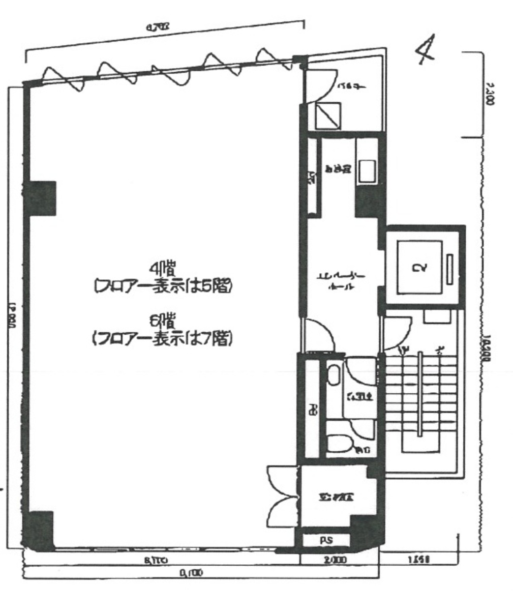
東京都港区南青山に位置する「アドバンテック南青山ビル」は、その優れた立地と設備で多くのビジネスマンから注目されている賃貸オフィス物件です。この物件は、1978年9月に竣工された10階建てのビルであり、新耐震基準に合格しており、安心してご利用いただけます。各フロアは基準階約30坪で、ほぼ長方形の貸室内は柱がなく、レイアウトの自由度が高くなっています。天井高さは2600mmと開放的で、明るい雰囲気が演出されています。また、空調は個別空調が導入され、床はOAフロア仕様となっており、快適なオフィス環境を求める企業にとって非常に魅力的です。 アドバンテック南青山ビルの最大の特徴の一つは、その立地にあります。東京メトロ銀座線の外苑前駅から徒歩1分という、まさに好立地に位置しています。この立地は、ビジネスチャンスを拡大し、都心におけるアクセスの利便性を重視する企業にとって理想的なものです。さらに、青山一丁目駅や表参道駅も徒歩圏内にあり、半蔵門線、銀座線、大江戸線と多路線が利用可能で、ビジネスの拠点としての機能を十分に発揮します。 セキュリティ面でも、機械警備システムを導入しており、24時間利用可能な点もビジネスマンにとっては大きな魅力です。光ファイバー完備で、高速インターネット環境も整っており、今日のビジネスシーンに欠かせない高度な通信環境を提供します。 さらに、ビルの周辺には、飲食店やコンビニが充実しており、ビジネスパーソンの日々の生活をサポートします。青山通り沿いという立地から、視認性にも優れ、来客時の案内も容易です。また、都内有数の商業エリアに位置しているため、集客力にも期待が持てます。 アドバンテック南青山ビルは、その立地、設備、セキュリティといった点で、多くのビジネスマンから高い評価を受けています。事務所はもちろん、サービス店舗やクリニックなど、様々な用途での利用も相談可能です。ビジネスの成功を担う重要な拠点として、ぜひ一度、アドバンテック南青山ビルをご検討ください。
アドバンテック南青山ビルのこだわり
自分で探すより問い合わせる方が早いことがあります
WEB非公開物件があるから
オーナー様のご希望により「WEBでは非公開」にしている物件があります。 それらはWEBでいくら検索しても見つかりません。 先ずは条件などお知らせ頂けましたら非公開物件含め ピッタリのオフィスをご提案させて頂きます。 無理なお勧めはしておりませんので、お気軽にお問い合わせください。
対面でのご相談も受け付けております
ご来店も歓迎です
オフィス移転は社内・社外ともに非公開に行われることが殆どです。そのためアットオフィスでは、基本的に訪問によるコンサルティングを行っておりますが、ご来店の相談も歓迎です。お一人おひとりに親身にご対応させて頂きたい為、要予約とさせて頂いております。ご来店の際は先ずは下記よりご予約下さい。
募集終了のテナント区画
| 階数 | 坪数 | 賃料 + 共益費 | 敷金/礼金敷金 礼金 | 検討 |
|---|---|---|---|---|
| B1階 | 31.12坪 (102.88m²) | 募集終了 | - | - |
読込中...
青山エリアでアドバンテック南青山ビルに似た条件の物件
読込中...
| 取扱様態 | 仲介 |
|---|---|
| 取扱会社 | 株式会社 アットオフィス |