※このサイトに記載がある賃貸条件は、敷金・保証金などの預かり金を除き、別途消費税がかかります。
物件情報
設備詳細
| 空調 | - |
|---|---|
| トイレ | - |
| 床仕様 | - |
| エレベータ | 2 基 |
| 駐車場設備 | - |
| その他 | 新耐震基準 |
英全ビルの賃貸オフィス・事務所に関するお問い合わせ
英全ビルについて
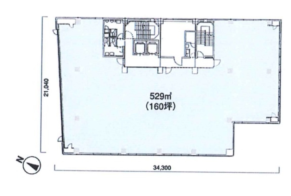
千代田区六番町に位置する英全ビルディングは、首都東京の中心にありながら、落ち着いた雰囲気を持つ賃貸オフィスビルの一つです。この地域は大使館や教育施設が多く、文化的かつ国際的な環境に恵まれています。市ヶ谷駅からわずか徒歩5分というアクセスの良さは、ビジネスの機動性を高める大きな利点です。さらに、四ツ谷駅と麹町駅も徒歩10分圏内にあり、複数の路線を利用可能であるため、都内各所へのアクセスが非常に便利です。 英全ビルは基準階面積198坪の大型ビルであり、中規模ビルでは希少な1棟貸しの選択肢も提供しています。これにより、企業は自社ビルとしての使用や、企業ブランディングを強化するためのカスタマイズが可能です。また、機械式駐車場が併設されており、ビジネスでの利便性をさらに高めています。 ビルの近隣環境も魅力の一つです。飲食店が点在する日本テレビ通りをはじめ、ナチュラルローソンや名代富士そばなど、日常の利便性を高める施設が徒歩圏内に充実しています。千代田四番丁郵便局も徒歩3分の距離にあり、ビジネスで必要となる郵便手続きもスムーズに行えます。 ビルのエントランスは洗練されたデザインで、訪れるクライアントに良い第一印象を与えます。オフィス街としての落ち着いた雰囲気の中にありながら、ビル前面の通りや周辺のオフィス街の様子は活気があり、ビジネスを行うにあたって刺激的な環境を提供しています。 公益財団法人JKAをはじめとする主要な入居テナントの存在は、英全ビルが提供する信頼性と安定性の証です。高いアクセス性、充実した設備、そして優れた立地条件を備えた英全ビルディングは、あなたのビジネスの成功を後押しする最適な場所です。
英全ビルのこだわり
自分で探すより問い合わせる方が早いことがあります
WEB非公開物件があるから
オーナー様のご希望により「WEBでは非公開」にしている物件があります。 それらはWEBでいくら検索しても見つかりません。 先ずは条件などお知らせ頂けましたら非公開物件含め ピッタリのオフィスをご提案させて頂きます。 無理なお勧めはしておりませんので、お気軽にお問い合わせください。
対面でのご相談も受け付けております
ご来店も歓迎です
オフィス移転は社内・社外ともに非公開に行われることが殆どです。そのためアットオフィスでは、基本的に訪問によるコンサルティングを行っておりますが、ご来店の相談も歓迎です。お一人おひとりに親身にご対応させて頂きたい為、要予約とさせて頂いております。ご来店の際は先ずは下記よりご予約下さい。
募集終了のテナント区画
| 階数 | 坪数 | 賃料 + 共益費 | 敷金/礼金敷金 礼金 | 検討 |
|---|---|---|---|---|
| B1階 | 1033.45坪 (3416.36m²) | 募集終了 | - | - |
読込中...
番町/麹町/平河町エリアで英全ビルに似た条件の物件
読込中...
| 取扱様態 | 仲介 |
|---|---|
| 取扱会社 | 株式会社 アットオフィス |