※このサイトに記載がある賃貸条件は、敷金・保証金などの預かり金を除き、別途消費税がかかります。
物件情報
設備詳細
| 空調 | - |
|---|---|
| トイレ | - |
| 床仕様 | - |
| エレベータ | 1 基 |
| 駐車場設備 | 空無 |
| その他 | 新耐震基準 |
あいおいニッセイ同和損保江東ビルの賃貸オフィス・事務所に関するお問い合わせ
あいおいニッセイ同和損保江東ビルについて
あいおいニッセイ同和損保江東ビルは、江東区住吉2丁目に所在する地上7階・地下1階建てのオフィスビルです。都営新宿線および東京地下鉄半蔵門線の住吉駅から徒歩1分、また半蔵門線の錦糸町駅からも徒歩10分の位置にあり、周辺には企業や店舗が点在しています。建物は1基のエレベーターを備えており、複数フロアのご利用を検討される方にも配慮されています。新耐震基準に適合している点も特徴のひとつです。複数の路線を利用できる駅近の立地は、従業員や来訪者の移動手段選択の幅を広げます。オフィスとしての利用をはじめ、フロアの構成や規模に合わせて多様な事業形態が検討できます。周辺環境や区画の詳細、現地のご見学についてはお問い合わせください。
あいおいニッセイ同和損保江東ビルのこだわり
自分で探すより問い合わせる方が早いことがあります
WEB非公開物件があるから
オーナー様のご希望により「WEBでは非公開」にしている物件があります。 それらはWEBでいくら検索しても見つかりません。 先ずは条件などお知らせ頂けましたら非公開物件含め ピッタリのオフィスをご提案させて頂きます。 無理なお勧めはしておりませんので、お気軽にお問い合わせください。
対面でのご相談も受け付けております
ご来店も歓迎です
オフィス移転は社内・社外ともに非公開に行われることが殆どです。そのためアットオフィスでは、基本的に訪問によるコンサルティングを行っておりますが、ご来店の相談も歓迎です。お一人おひとりに親身にご対応させて頂きたい為、要予約とさせて頂いております。ご来店の際は先ずは下記よりご予約下さい。
募集終了のテナント区画
| 階数 | 坪数 | 賃料 + 共益費 | 敷金/礼金敷金 礼金 | 検討 |
|---|---|---|---|---|
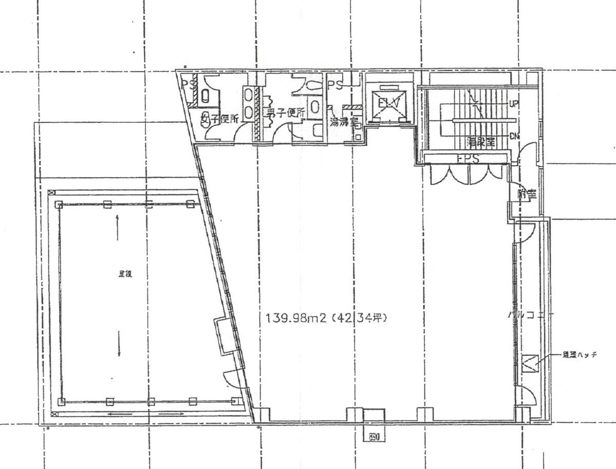
| 4階 | 42.34坪 (139.97m²) | 募集終了 | - | - |
| 5階 | 16坪 (52.89m²) | 募集終了 | - | - |
| 5階 | 42.1坪 (139.17m²) | 募集終了 | - | - |
| 7階 | 42.1坪 (139.18m²) | 募集終了 | - | - |
読込中...
江東区エリアであいおいニッセイ同和損保江東ビルに似た条件の物件
読込中...
| 取扱様態 | 仲介 |
|---|---|
| 取扱会社 | 株式会社 アットオフィス |