※このサイトに記載がある賃貸条件は、敷金・保証金などの預かり金を除き、別途消費税がかかります。
物件情報
設備詳細
| 空調 | - |
|---|---|
| トイレ | - |
| 床仕様 | - |
| エレベータ | 1 基 |
| 駐車場設備 | 空有 |
| その他 | 新耐震基準 |
セントラル荒川ビルの賃貸オフィス・事務所に関するお問い合わせ
セントラル荒川ビルについて
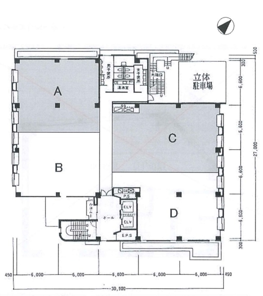
荒川区荒川2丁目に位置するセントラル荒川ビルは、地上10階建ての事業用賃貸ビルです。最寄りの荒川線「荒川区役所前駅」から徒歩2分、「荒川二丁目駅」からは徒歩5分、「荒川一中前駅」からも徒歩6分と、複数の駅が利用可能な場所に立地しています。基準階面積は195㎡となっており、ワンフロアごとのスペースが確保されているため、オフィスレイアウトの計画もしやすい構造です。 建物は複数路線の駅に近いことから、さまざまな方面への移動が可能となります。荒川区役所や近隣の公共施設へのアクセスも考えられるため、行政手続きや地域との連携を重視する企業にも利用が見込まれます。また、周囲はオフィスや住宅が混在するエリアに位置しており、地域の特性を活かした事業展開が可能です。 10階建ての建物規模を活かし、各フロアで独立した業務運営や部署ごとの利用も検討できます。レイアウトプランや利用イメージについては、実際の現地確認や内覧でのご相談が適しています。詳細はお問い合わせください。
セントラル荒川ビルのこだわり
自分で探すより問い合わせる方が早いことがあります
WEB非公開物件があるから
オーナー様のご希望により「WEBでは非公開」にしている物件があります。 それらはWEBでいくら検索しても見つかりません。 先ずは条件などお知らせ頂けましたら非公開物件含め ピッタリのオフィスをご提案させて頂きます。 無理なお勧めはしておりませんので、お気軽にお問い合わせください。
対面でのご相談も受け付けております
ご来店も歓迎です
オフィス移転は社内・社外ともに非公開に行われることが殆どです。そのためアットオフィスでは、基本的に訪問によるコンサルティングを行っておりますが、ご来店の相談も歓迎です。お一人おひとりに親身にご対応させて頂きたい為、要予約とさせて頂いております。ご来店の際は先ずは下記よりご予約下さい。
募集終了のテナント区画
| 階数 | 坪数 | 賃料 + 共益費 | 敷金/礼金敷金 礼金 | 検討 |
|---|---|---|---|---|
| 2階 | 103.23坪 (341.26m²) | 募集終了 | - | - |
| 2階 | 103.23坪 (341.26m²) | 募集終了 | - | - |
| 2階 | 53.74坪 (177.65m²) | 募集終了 | - | - |
| 3階 | 194.32坪 (642.38m²) | 募集終了 | - | - |
| 3階 | 52.35坪 (173.05m²) | 募集終了 | - | - |
| 3階 | 50.88坪 (168.19m²) | 募集終了 | - | - |
| 4階 | 103.23坪 (341.26m²) | 募集終了 | - | - |
| 4階 | 194.31坪 (642.34m²) | 募集終了 | - | - |
| 4階 | 37.7坪 (124.62m²) | 募集終了 | - | - |
| 5階 | 194.31坪 (642.35m²) | 募集終了 | - | - |
| 6階 | 43.74坪 (144.6m²) | 募集終了 | - | - |
| 6階 | 55.68坪 (184.08m²) | 募集終了 | - | - |
| 6階 | 194.31坪 (642.35m²) | 募集終了 | - | - |
| 6階 | 103.23坪 (341.26m²) | 募集終了 | - | - |
| 7階 | 52.35坪 (173.06m²) | 募集終了 | - | - |
| 7階 | 52.35坪 (173.06m²) | 募集終了 | - | - |
| 7階 | 91.01坪 (300.87m²) | 募集終了 | - | - |
| 7階 | 103.23坪 (341.27m²) | 募集終了 | - | - |
| 8階 | 61.91坪 (204.66m²) | 募集終了 | - | - |
| 8階 | 49.49坪 (163.6m²) | 募集終了 | - | - |
| 8階 | 103.23坪 (341.27m²) | 募集終了 | - | - |
| 8階 | 46.63坪 (154.15m²) | 募集終了 | - | - |
読込中...
荒川区エリアでセントラル荒川ビルに似た条件の物件
読込中...
| 取扱様態 | 仲介 |
|---|---|
| 取扱会社 | 株式会社 アットオフィス |