飯野ビルの賃料条件
| 階数 | 坪数 | 賃料 + 共益費 | 敷金/礼金敷金 礼金 | 検討 |
|---|---|---|---|---|
| 1階 | 68.14坪 (225.25m²) | 1,022,100円 (坪:15,000 円) | 12ヶ月 無12ヶ月/無 |
※このサイトに記載がある賃貸条件は、敷金・保証金などの預かり金を除き、別途消費税がかかります。
物件情報
設備詳細
| 空調 | - |
|---|---|
| トイレ | 男女別トイレ室外 |
| 床仕様 | - |
| エレベータ | 2 基 |
| 駐車場設備 | 機械式駐車場 |
| その他 | 機械警備 / 24時間利用可 / 光ファイバー / 新耐震基準 / 1階の物件 |
飯野ビルの賃貸オフィス・事務所に関するお問い合わせ
飯野ビルについて
飯野ビルは、東京都江東区亀戸に位置する魅力的なオフィス物件です。このビルは1993年に竣工され、地上9階建て、地下1階という規模を持ち、基準階約87坪のスペースを提供しています。外観はグレーのタイルとミラーガラスを組み合わせたデザインで、周囲の街並みに調和しつつ、落ち着いた印象を与えます。 飯野ビルは、機械警備によるセキュリティが導入されており、安心して使用できる環境が整っています。また、2基のエレベーターがあり、スムーズな移動をサポートします。駐車場も機械式で設置されており、自動車での通勤にも対応可能です。 オフィススペースは長方形の執務形状を持ち、効率的なレイアウトが容易です。水回りは共用部に設置され、トイレは男女別々に分かれているため、快適な利用が可能です。さらに、個別空調システムを採用しているため、季節や用途に応じた温度管理が可能です。 立地面でも優れており、ビルは京葉通りに面しており、亀戸駅が最寄り駅として利用できます。さらに、錦糸町駅も徒歩圏内にあるため、さまざまな方面へのアクセスが便利です。周辺にはコンビニエンスストアや飲食店が多数あり、日常の利便性も高いエリアです。 飯野ビルは、オフィスビルが集まる活気あるエリアに位置し、ビジネス活動を支える条件が整っています。新耐震基準に基づいて建築されており、安全面でも安心して利用できる物件です。快適なオフィス環境を提供する飯野ビルで、次のステップを踏み出してみませんか。
自分で探すより問い合わせる方が早いことがあります
WEB非公開物件があるから
オーナー様のご希望により「WEBでは非公開」にしている物件があります。 それらはWEBでいくら検索しても見つかりません。 先ずは条件などお知らせ頂けましたら非公開物件含め ピッタリのオフィスをご提案させて頂きます。 無理なお勧めはしておりませんので、お気軽にお問い合わせください。
対面でのご相談も受け付けております
ご来店も歓迎です
オフィス移転は社内・社外ともに非公開に行われることが殆どです。そのためアットオフィスでは、基本的に訪問によるコンサルティングを行っておりますが、ご来店の相談も歓迎です。お一人おひとりに親身にご対応させて頂きたい為、要予約とさせて頂いております。ご来店の際は先ずは下記よりご予約下さい。
募集終了のテナント区画
| 階数 | 坪数 | 賃料 + 共益費 | 敷金/礼金敷金 礼金 | 検討 |
|---|---|---|---|---|
| 2階 | 59.09坪 (195.34m²) | 募集終了 | - | - |
| 3階 | 87.19坪 (288.24m²) | 募集終了 | - | - |
| 4階 | 45.38坪 (150.02m²) | 募集終了 | - | - |
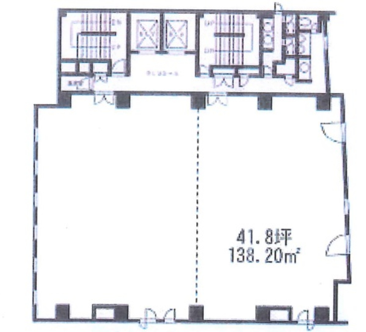
| 4階 | 41.8坪 (138.17m²) | 募集終了 | - | - |
| 5階 | 87.19坪 (288.24m²) | 募集終了 | - | - |
| 5階 | 45.38坪 (150.01m²) | 募集終了 | - | - |
| 5階 | 41.8坪 (138.18m²) | 募集終了 | - | - |
| 6階 | 87.19坪 (288.23m²) | 募集終了 | - | - |
| 6階 | 41.8坪 (138.18m²) | 募集終了 | - | - |
| 7階 | 41.8坪 (138.18m²) | 募集終了 | - | - |
| 7階 | 45.38坪 (150.04m²) | 募集終了 | - | - |
| 7階 | 87.19坪 (288.23m²) | 募集終了 | - | - |
| 8階 | 45.38坪 (150.02m²) | 募集終了 | - | - |
| 8階 | 41.8坪 (138.18m²) | 募集終了 | - | - |
| 8階 | 87.19坪 (288.23m²) | 募集終了 | - | - |
| 9階 | 87.19坪 (288.23m²) | 募集終了 | - | - |
読込中...
江東区エリアで飯野ビルに似た条件の物件
読込中...
| 取扱様態 | 仲介 |
|---|---|
| 取扱会社 | 株式会社 アットオフィス |