※このサイトに記載がある賃貸条件は、敷金・保証金などの預かり金を除き、別途消費税がかかります。
物件情報
設備詳細
| 空調 | - |
|---|---|
| トイレ | - |
| 床仕様 | - |
| エレベータ | 2 基 |
| 駐車場設備 | 空有 / 機械式駐車場 |
| その他 | 機械警備 / 大型ビル / 新耐震基準 |
スリーエフ南青山ビルの賃貸オフィス・事務所に関するお問い合わせ
スリーエフ南青山ビルについて
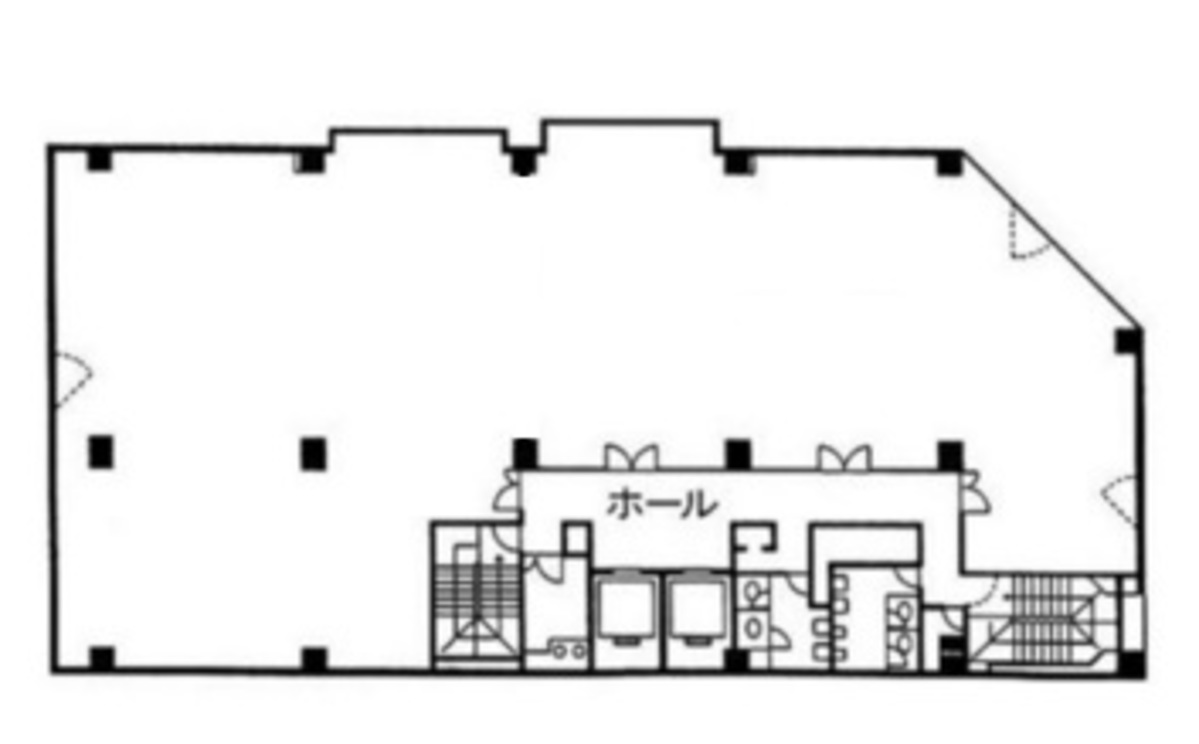
スリーエフ南青山ビルは、都心の洗練されたエリア、港区南青山6丁目に位置するハイグレードオフィスビルであり、その立地と設備はビジネスの成功に不可欠な要素を備えています。1985年に竣工し、2010年にはリニューアルを施されたこのビルは、新耐震基準に準拠しており、安全性にも配慮されています。地上9階・地下1階建てで、基準階の賃貸オフィスは約126坪の広さを誇ります。 このビルの特筆すべき点は、その立地の素晴らしさです。骨董通り(高樹町通り)沿いに位置し、表参道駅から徒歩11分のアクセスの良さは、ビジネスの機動性を高めます。また、このエリアはファッションやデザイン業界の最先端を行く企業が集まる地域であり、アパレルやデザイン系企業にとっては、まさに理想的な立地と言えるでしょう。 ビルの設計には特にこだわりが見られます。1~2階はガラス張りで、明るく開放感のある空間が広がっており、メゾネットとしての利用も可能です。また、エントランスは内外が吹き抜けの高級感あふれるデザインとなっており、訪れる人々に良い印象を与えることでしょう。ビル内には月極駐車場が設けられ、機械式であるため、スペースの有効活用が図られています。さらに、24時間対応の有人管理によるセキュリティ体制も整っており、安心してビジネスを展開できる環境が提供されています。 オフィス内は、三面採光による豊かな自然光が入る設計となっており、働く人々の創造性と生産性を高めることに貢献します。床荷重は300kg/㎡と十分な耐荷重性能を持ち、様々なオフィスニーズに対応可能です。また、男女別トイレや個別空調といった、ビル利用者の快適性を考慮した設備も充実しています。 立地の良さ、安全性、設備の充実度など、スリーエフ南青山ビルはビジネスの成長を後押しする要素を多数有しています。特にアパレル・デザイン系企業にとっては、ブランドイメージの向上にも繋がる貴重なオフィススペースと言えるでしょう。南青山という地の利を生かしたビジネス展開を考える企業にとって、理想的な選択肢の一つと言えるでしょう。
自分で探すより問い合わせる方が早いことがあります
WEB非公開物件があるから
オーナー様のご希望により「WEBでは非公開」にしている物件があります。 それらはWEBでいくら検索しても見つかりません。 先ずは条件などお知らせ頂けましたら非公開物件含め ピッタリのオフィスをご提案させて頂きます。 無理なお勧めはしておりませんので、お気軽にお問い合わせください。
対面でのご相談も受け付けております
ご来店も歓迎です
オフィス移転は社内・社外ともに非公開に行われることが殆どです。そのためアットオフィスでは、基本的に訪問によるコンサルティングを行っておりますが、ご来店の相談も歓迎です。お一人おひとりに親身にご対応させて頂きたい為、要予約とさせて頂いております。ご来店の際は先ずは下記よりご予約下さい。
募集終了のテナント区画
| 階数 | 坪数 | 賃料 + 共益費 | 敷金/礼金敷金 礼金 | 検討 |
|---|---|---|---|---|
| 1階 | 166.77坪 (551.3m²) | 募集終了 | - | - |
| 1階 | 60坪 (198.35m²) | 募集終了 | - | - |
| 1階 | 81.86坪 (270.61m²) | 募集終了 | - | - |
| 1階 | 19.18坪 (63.4m²) | 募集終了 | - | - |
| 2階 | 120坪 (396.69m²) | 募集終了 | - | - |
| 2階 | 65坪 (214.88m²) | 募集終了 | - | - |
| 2階 | 70.15坪 (231.9m²) | 募集終了 | - | - |
| 3階 | 49.77坪 (164.53m²) | 募集終了 | - | - |
| 3階 | 37.41坪 (123.67m²) | 募集終了 | - | - |
| 3階 | 56.01坪 (185.16m²) | 募集終了 | - | - |
| 3階 | 42.81坪 (141.52m²) | 募集終了 | - | - |
| 4階 | 126.55坪 (418.35m²) | 募集終了 | - | - |
| 5階 | 126.7坪 (418.84m²) | 募集終了 | - | - |
| 6階 | 126.7坪 (418.84m²) | 募集終了 | - | - |
| 6階 | 49.5坪 (163.64m²) | 募集終了 | - | - |
| 6階 | 126.7坪 (418.84m²) | 募集終了 | - | - |
| 6階 | 37.61坪 (124.33m²) | 募集終了 | - | - |
| 6階 | 58.41坪 (193.09m²) | 募集終了 | - | - |
| 6階 | 68.14坪 (225.25m²) | 募集終了 | - | - |
| 7階 | 116.05坪 (383.63m²) | 募集終了 | - | - |
| 8階 | 102.18坪 (337.79m²) | 募集終了 | - | - |
| 9階 | 79.04坪 (261.29m²) | 募集終了 | - | - |
| 9階 | 11.15坪 (36.86m²) | 募集終了 | - | - |
| 9階 | 126坪 (416.53m²) | 募集終了 | - | - |
| 9階 | 31.38坪 (103.73m²) | 募集終了 | - | - |
読込中...
青山エリアでスリーエフ南青山ビルに似た条件の物件
読込中...
| 取扱様態 | 仲介 |
|---|---|
| 取扱会社 | 株式会社 アットオフィス |