※このサイトに記載がある賃貸条件は、敷金・保証金などの預かり金を除き、別途消費税がかかります。
物件情報
設備詳細
| 空調 | 個別空調 |
|---|---|
| トイレ | - |
| 床仕様 | - |
| エレベータ | 2 基 |
| 駐車場設備 | - |
| その他 | 機械警備 / 24時間利用可 / 大型ビル / 管理人常駐 / 光ファイバー / 新耐震基準 / 1階の物件 / クリニック |
日土地亀戸ビルの賃貸オフィス・事務所に関するお問い合わせ
日土地亀戸ビルについて
日土地亀戸ビルは、江東区亀戸6丁目に位置し、総武線および東武鉄道亀戸線「亀戸駅」から徒歩2分、また総武・中央緩行線「亀戸駅」からも徒歩4分でアクセスすることができます。地上9階・地下1階の構成となっており、規模のある大型ビルです。 エントランスには管理人が常駐しており、機械警備も導入されています。24時間の利用が可能で、オフィスワークの多様なスケジュールに対応できる環境が整っています。光ファイバーが敷設されているため、通信インフラの整備も確認できます。 エレベーターは2基設置されており、複数フロアへの移動もスムーズです。新耐震基準に適合している建物であり、基準を満たした構造となっています。詳細はお問い合わせください。
自分で探すより問い合わせる方が早いことがあります
WEB非公開物件があるから
オーナー様のご希望により「WEBでは非公開」にしている物件があります。 それらはWEBでいくら検索しても見つかりません。 先ずは条件などお知らせ頂けましたら非公開物件含め ピッタリのオフィスをご提案させて頂きます。 無理なお勧めはしておりませんので、お気軽にお問い合わせください。
対面でのご相談も受け付けております
ご来店も歓迎です
オフィス移転は社内・社外ともに非公開に行われることが殆どです。そのためアットオフィスでは、基本的に訪問によるコンサルティングを行っておりますが、ご来店の相談も歓迎です。お一人おひとりに親身にご対応させて頂きたい為、要予約とさせて頂いております。ご来店の際は先ずは下記よりご予約下さい。
募集終了のテナント区画
| 階数 | 坪数 | 賃料 + 共益費 | 敷金/礼金敷金 礼金 | 検討 |
|---|---|---|---|---|
| 2階 | 172.4坪 (570m²) | 募集終了 | - | - |
| 4階 | 55.43坪 (183.23m²) | 募集終了 | - | - |
| 5階 | 159.4坪 (526.94m²) | 募集終了 | - | - |
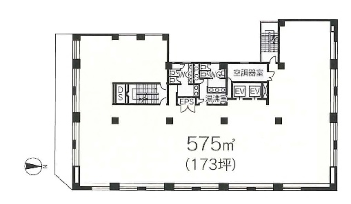
| 6階 | 173.93坪 (574.98m²) | 募集終了 | - | - |
| 7階 | 174.62坪 (574.98m²) | 募集終了 | - | - |
| 8階 | 173.93坪 (574.98m²) | 募集終了 | - | - |
読込中...
江東区エリアで日土地亀戸ビルに似た条件の物件
読込中...
| 取扱様態 | 仲介 |
|---|---|
| 取扱会社 | 株式会社 アットオフィス |