※このサイトに記載がある賃貸条件は、敷金・保証金などの預かり金を除き、別途消費税がかかります。
お電話でもお気軽にお問い合わせください
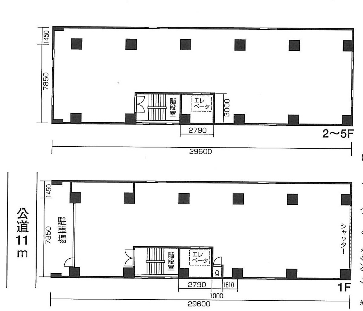
物件情報
設備詳細
| 空調 | - |
|---|---|
| トイレ | - |
| 床仕様 | - |
| エレベータ | 1 基 / エレベーター有 |
| 駐車場設備 | 空有 |
| その他 | - |
アクセスマップ
募集終了のテナント区画
| 階数 | 坪数 | 賃料 + 共益費 | 敷金/礼金敷金 礼金 | 検討 |
|---|---|---|---|---|
| 1階 | 511.13坪 (1689.71m²) | 募集終了 | - | - |
| 2階 | 76.11坪 (251.6m²) | 募集終了 | - | - |
| 3階 | 76.11坪 (251.6m²) | 募集終了 | - | - |
| 4階 | 76.11坪 (251.6m²) | 募集終了 | - | - |
| 5階 | 76.11坪 (251.6m²) | 募集終了 | - | - |
| 6階 | 76.11坪 (251.6m²) | 募集終了 | - | - |
WEB非公開物件がございます
オーナー様ご希望によるWEB非公開の物件もございます。先ずは条件などお知らせ頂けましたら、非公開物件含めピッタリのオフィスをご提案させて頂きます。具体的な物件がお決まりでない場合でも問題ございません。無理なお勧めはしておりませんので、お気軽にお問い合わせください。
ご来店も歓迎です
オフィス移転は社内・社外ともに非公開に行われることが殆どです。そのためアットオフィスでは、基本的に訪問によるコンサルティングを行っておりますが、ご来店の相談も歓迎です。
※お一人おひとりに親身にご対応させて頂きたい為、要予約とさせて頂いております。ご来店の際は先ずは上記よりご予約下さい。
読込中...
江東区エリアでタチバナ佐賀ビルに似た条件の物件
読込中...