※このサイトに記載がある賃貸条件は、敷金・保証金などの預かり金を除き、別途消費税がかかります。
物件情報
設備詳細
| 空調 | - |
|---|---|
| トイレ | - |
| 床仕様 | - |
| エレベータ | 2 基 |
| 駐車場設備 | - |
| その他 | 機械警備 / 光ファイバー / 新耐震基準 |
フォーラムビルの賃貸オフィス・事務所に関するお問い合わせ
フォーラムビルについて
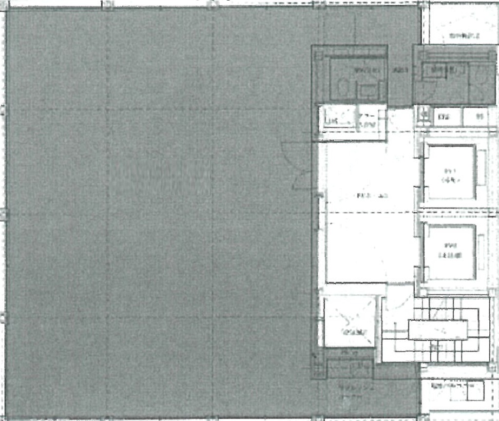
東京都港区南青山に位置するフォーラムビルディングは、2009年に竣工された現代的な賃貸オフィスビルであり、その洗練されたデザインと機能性が注目を集めています。本ビルは、ニューヨーク近代美術館(MoMA)の新館デザインを手がけたモダニズム建築の巨匠、谷口吉生氏による設計であり、その美学が随所に反映されています。 立地においては、東京メトロ銀座線・半蔵門線外苑前駅の1b出口から徒歩わずか1分という抜群のアクセスを誇り、青山一丁目駅や表参道駅へも徒歩圏内であり、企業のビジネス活動をサポートする最適な環境を提供しています。また、青山通りに面しており、周辺には飲食店やコンビニエンスストア、銀行などが揃っており、日々の業務に必要なあらゆるサービスが手の届く範囲にあります。 ビルの設備面では、基準階約52坪の無柱空間が提供され、高い柔軟性と効率的なオフィスレイアウトを実現しています。また、3面が採光に恵まれた明るい室内空間は働く人々のクリエイティビティを促進します。床はOAフロア仕様で、天井高は2,800mmと広々としており、快適なオフィス環境が整っています。セキュリティ面では、SECOMによる機械警備が導入されており、安心して業務に集中できる環境が提供されています。 フォーラムビルディングは、そのユニークなデザインに加え、利便性の高い立地、高スペックな設備が融合した、ビジネスの成功を後押しする賃貸オフィス物件です。企業が新たな拠点を検討する際には、このような環境が創造性や生産性の向上に大いに寄与することでしょう。青山という東京の中心部に位置し、ビジネスと文化が交差するこの地で、次世代のオフィス環境を求める企業にとって最適な選択肢の一つと言えるでしょう。
フォーラムビルのこだわり
自分で探すより問い合わせる方が早いことがあります
WEB非公開物件があるから
オーナー様のご希望により「WEBでは非公開」にしている物件があります。 それらはWEBでいくら検索しても見つかりません。 先ずは条件などお知らせ頂けましたら非公開物件含め ピッタリのオフィスをご提案させて頂きます。 無理なお勧めはしておりませんので、お気軽にお問い合わせください。
対面でのご相談も受け付けております
ご来店も歓迎です
オフィス移転は社内・社外ともに非公開に行われることが殆どです。そのためアットオフィスでは、基本的に訪問によるコンサルティングを行っておりますが、ご来店の相談も歓迎です。お一人おひとりに親身にご対応させて頂きたい為、要予約とさせて頂いております。ご来店の際は先ずは下記よりご予約下さい。
募集終了のテナント区画
| 階数 | 坪数 | 賃料 + 共益費 | 敷金/礼金敷金 礼金 | 検討 |
|---|---|---|---|---|
| 2階 | 52.94坪 (175.02m²) | 募集終了 | - | - |
| 3階 | 52.94坪 (175.02m²) | 募集終了 | - | - |
| 4階 | 52.94坪 (175.02m²) | 募集終了 | - | - |
| 5階 | 52.94坪 (175m²) | 募集終了 | - | - |
| 6階 | 52.94坪 (175.01m²) | 募集終了 | - | - |
| 7階 | 52.94坪 (175.01m²) | 募集終了 | - | - |
| 8階 | 52.94坪 (175.02m²) | 募集終了 | - | - |
| 9階 | 52.94坪 (175.01m²) | 募集終了 | - | - |
| 10階 | 52.94坪 (175.02m²) | 募集終了 | - | - |
| 11階 | 53坪 (175.21m²) | 募集終了 | - | - |
読込中...
青山エリアでフォーラムビルに似た条件の物件
読込中...
| 取扱様態 | 仲介 |
|---|---|
| 取扱会社 | 株式会社 アットオフィス |