※このサイトに記載がある賃貸条件は、敷金・保証金などの預かり金を除き、別途消費税がかかります。
物件情報
設備詳細
| 空調 | - |
|---|---|
| トイレ | - |
| 床仕様 | - |
| エレベータ | - |
| 駐車場設備 | - |
| その他 | 新耐震基準 |
盛美堂ビルの賃貸オフィス・事務所に関するお問い合わせ
盛美堂ビルについて
盛美堂ビルは、江東区永代2丁目に位置する地上9階建ての事業用建物です。大江戸線および東西線「門前仲町駅」から徒歩4分、京葉線「越中島駅」からも徒歩7分の場所にあり、複数路線の駅からアクセス可能な立地となっています。永代通りからほど近く、周囲はオフィスや商業施設が点在するエリアです。ビジネスの拠点として、都心部や湾岸方面への移動もしやすい環境にあります。 建物の規模は地上9階と、フロアごとに用途を分けて活用したい法人様にも現実的な選択肢となります。オフィスや事務所利用のほか、区画ごとに異なる部門で利用する場合にも柔軟なレイアウトが可能です。周辺には飲食店やコンビニエンスストア等も点在し、日々の業務の合間の利便も想定できます。 ビルの外観、共用部の仕様、基準階の詳細なレイアウトなど、具体的なご質問やご要望につきましては、詳細はお問い合わせください。
盛美堂ビルのこだわり
自分で探すより問い合わせる方が早いことがあります
WEB非公開物件があるから
オーナー様のご希望により「WEBでは非公開」にしている物件があります。 それらはWEBでいくら検索しても見つかりません。 先ずは条件などお知らせ頂けましたら非公開物件含め ピッタリのオフィスをご提案させて頂きます。 無理なお勧めはしておりませんので、お気軽にお問い合わせください。
対面でのご相談も受け付けております
ご来店も歓迎です
オフィス移転は社内・社外ともに非公開に行われることが殆どです。そのためアットオフィスでは、基本的に訪問によるコンサルティングを行っておりますが、ご来店の相談も歓迎です。お一人おひとりに親身にご対応させて頂きたい為、要予約とさせて頂いております。ご来店の際は先ずは下記よりご予約下さい。
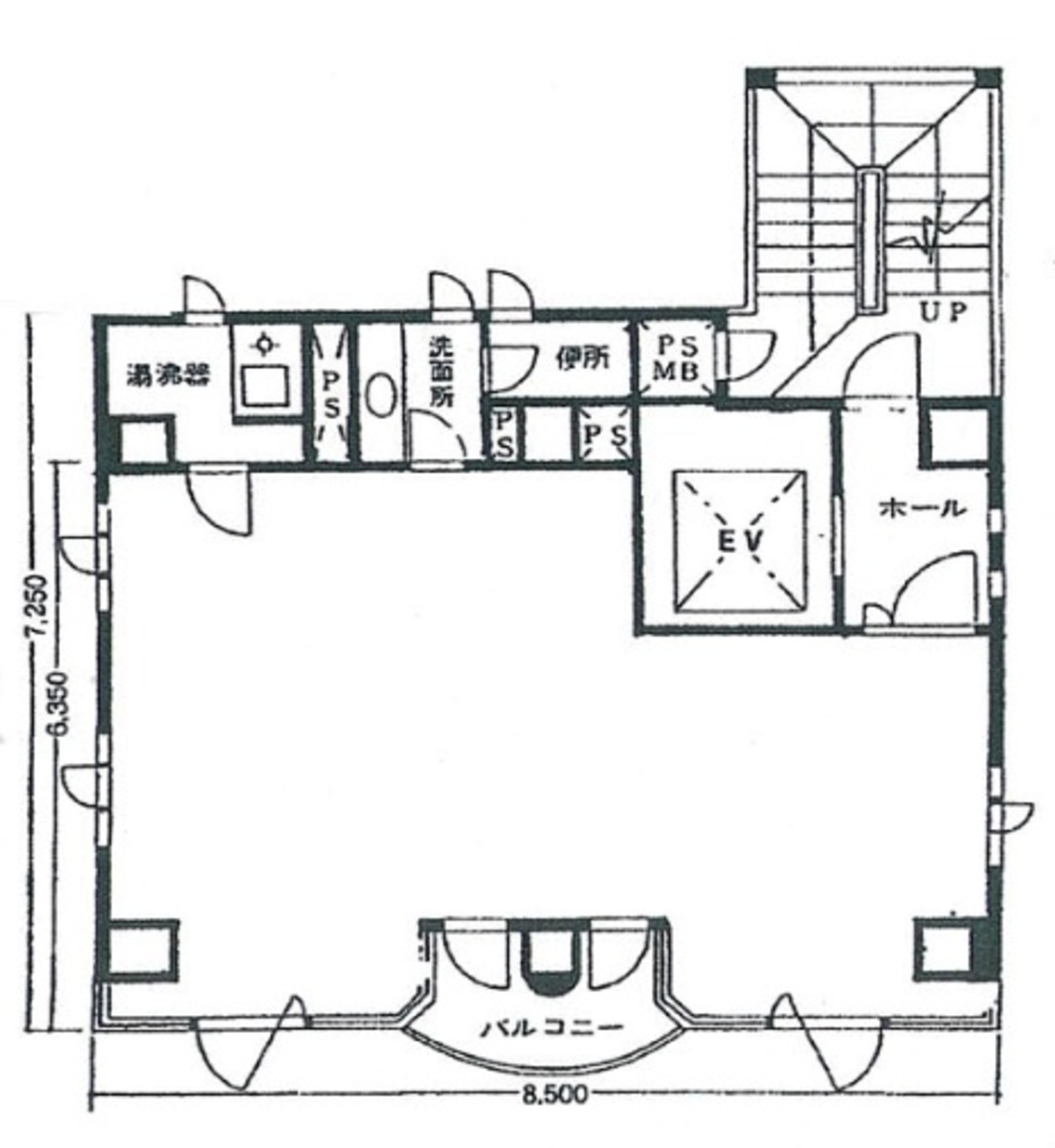
募集終了のテナント区画
| 階数 | 坪数 | 賃料 + 共益費 | 敷金/礼金敷金 礼金 | 検討 |
|---|---|---|---|---|
| 2階 | 15.77坪 (52.04m²) | 募集終了 | - | - |
| 3階 | 15.77坪 (52.04m²) | 募集終了 | - | - |
| 4階 | 15.77坪 (52.04m²) | 募集終了 | - | - |
| 5階 | 15.77坪 (52.04m²) | 募集終了 | - | - |
| 6階 | 15.77坪 (52.04m²) | 募集終了 | - | - |
| 7階 | 15.77坪 (52.04m²) | 募集終了 | - | - |
| 8階 | 15.77坪 (52.04m²) | 募集終了 | - | - |
| 9階 | 15.77坪 (52.04m²) | 募集終了 | - | - |
読込中...
江東区エリアで盛美堂ビルに似た条件の物件
読込中...
| 取扱様態 | 仲介 |
|---|---|
| 取扱会社 | 株式会社 アットオフィス |