※このサイトに記載がある賃貸条件は、敷金・保証金などの預かり金を除き、別途消費税がかかります。
物件情報
設備詳細
| 空調 | - |
|---|---|
| トイレ | - |
| 床仕様 | - |
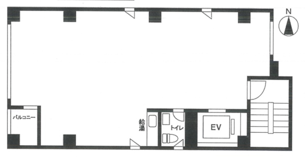
| エレベータ | 1 基 |
| 駐車場設備 | - |
| その他 | 新耐震基準 |
光ビルの賃貸オフィス・事務所に関するお問い合わせ
光ビルについて
光ビルは、墨田区菊川3丁目に位置する事業用建物です。都営新宿線「菊川駅」から徒歩2分、都営新宿線「住吉駅」まで徒歩7分、半蔵門線「住吉駅」も徒歩8分にあり、複数路線・駅からアクセスが可能です。建物にはエレベーターが設置されており、日常の移動や荷物の運搬もスムーズに行うことができます。地上階建ての構造で、周辺には住宅や商業施設が点在しています。オフィスや店舗、各種事業活動の拠点として、駅からの動線を重視される方にも検討いただけます。周囲には飲食や生活利便施設もあり、従業員や来訪者の利用にも便利な住環境となっています。事業活動の拠点として場所をお探しの場合、現地の様子や詳細な建物情報についてはお問い合わせください。
光ビルのこだわり
自分で探すより問い合わせる方が早いことがあります
WEB非公開物件があるから
オーナー様のご希望により「WEBでは非公開」にしている物件があります。 それらはWEBでいくら検索しても見つかりません。 先ずは条件などお知らせ頂けましたら非公開物件含め ピッタリのオフィスをご提案させて頂きます。 無理なお勧めはしておりませんので、お気軽にお問い合わせください。
対面でのご相談も受け付けております
ご来店も歓迎です
オフィス移転は社内・社外ともに非公開に行われることが殆どです。そのためアットオフィスでは、基本的に訪問によるコンサルティングを行っておりますが、ご来店の相談も歓迎です。お一人おひとりに親身にご対応させて頂きたい為、要予約とさせて頂いております。ご来店の際は先ずは下記よりご予約下さい。
募集終了のテナント区画
| 階数 | 坪数 | 賃料 + 共益費 | 敷金/礼金敷金 礼金 | 検討 |
|---|---|---|---|---|
| 3階 | 20.75坪 (68.61m²) | 募集終了 | - | - |
| 4階 | 16.04坪 (53.02m²) | 募集終了 | - | - |
読込中...
墨田区エリアで光ビルに似た条件の物件
読込中...
| 取扱様態 | 仲介 |
|---|---|
| 取扱会社 | 株式会社 アットオフィス |